Frisch Architekt

Architekturbüro Frisch

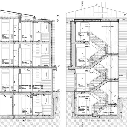
Mehrfamilienhaus Kiel Schilksee


LPH: 5

Ausführungs -und Detailplanung
für Walter Rolfes und Partner Architekten BDA

Standort: Kiel-Schilksee
Bauherr: Störtebecker Hochbau GMBH
Auftraggeber: Walter Rolfes und Partner, Berlin
Statik: Dipl.-Ing. Dr. Weber
Bauleitung: Henning Architekten
Nutzung: Wohnen